Skip to content Skip to footer
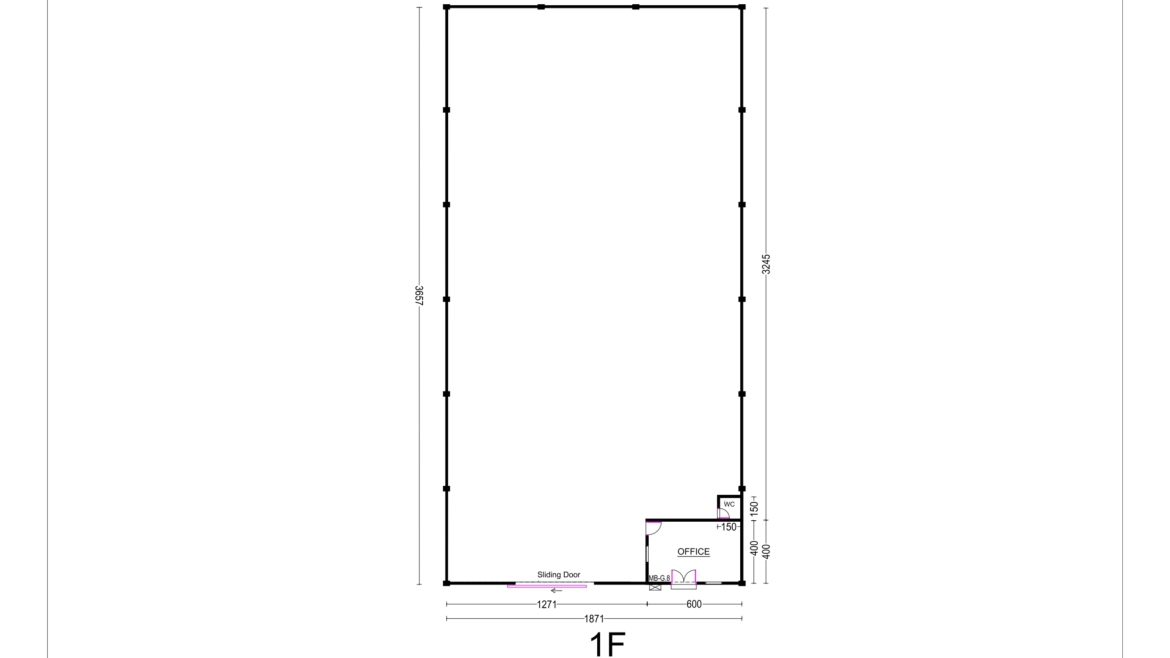
Area size: 1601 m2 Effective Warehouse Area: 668 m2 1st Floor Office Area: 24 m2 Toilet Room: 3 m2 Warehouse Main Door: 4 m (Width) x 4.5 m (Height) Facilities: 2 x Fire Extinguisher (6 kg)
Electricity (22 kVA) & Water
Address: GBM Logistics Center
Jl. Raya Bogor Km. 50,
Cijujung, Sukaraja,
Kabupaten Bogor 16710
Jawa Barat
Indonesia
Mobile/Telephone: +62 81119226888 / +62 (251) 3108000

Contacts

×

Hello!

Click one of our contacts below to chat on WhatsApp

×